x

What are the fixed supports on the bridge? Isn't there no distinction between fixed bearings and movable bearings for laminated rubber bearings?

What are the fixed supports on the bridge? Isn't there no distinction between fixed bearings and movable bearings for laminated rubber bearings?

December 29, 2025

The function of the support is to transmit various loads of the upper structure and adapt to displacement caused by factors such as temperature, shrinkage, and creep.

Generally divided into fixed supports and movable supports. Fixed supports mainly constrain vertical displacement and horizontal displacement, while movable supports may constrain vertical displacement and displacement in a certain horizontal direction.

For simply supported beams, one end fixed support and one end movable support are generally used. For continuous beams, a fixed support is generally selected for one pier in each connection, and the setting of the support should be conducive to the transmission of horizontal forces between the piers and abutments.

Main types of bearings: simple bearings, curved steel plate bearings, rubber bearings. Rubber bearings are divided into plate type rubber bearings and pot type rubber bearings.

Small and medium span highway bridges generally use plate rubber bearings. Large span continuous beam bridges generally use pot type rubber bearings. Railway bridges generally use steel supports.

1. Simple support

Made of several layers of felt or asbestos, with a compacted thickness of not less than 1cm, used for slab girder bridges with spans less than 10m.

2. Curved steel support

Scope of application: Span of 10-20m


The upper and lower contact surfaces of the support are curved, and the reaction force can be concentrated and transmitted, and the beam end can also rotate freely. However, during expansion and contraction, significant frictional resistance needs to be overcome, so it is only suitable for beams with smaller spans.


3. Plate type rubber bearings


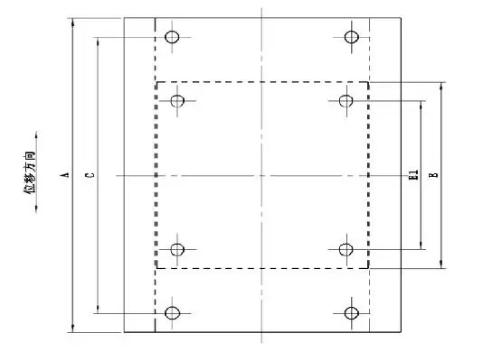
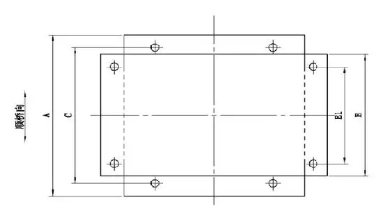
Divided into two types: rectangular and circular.


1 represents reinforced steel plate, 2 represents rubber layer


Due to the different elastic moduli and stiffness of steel plates and rubber, the rotation of the support is achieved by varying the magnitude of deformation when there is uneven elastic compression; Realize horizontal displacement through shear deformation of rubber; Plate rubber bearings are not divided into fixed bearings and movable bearings!


The PTFE skateboard rubber support is a support formed by bonding a certain thickness of PTFE sheet on the top surface of a regular plate rubber support. For example, ball crown circular plate rubber bearings, slope type plate rubber bearings, and lead core rubber bearings are all deformations of plate rubber bearings.


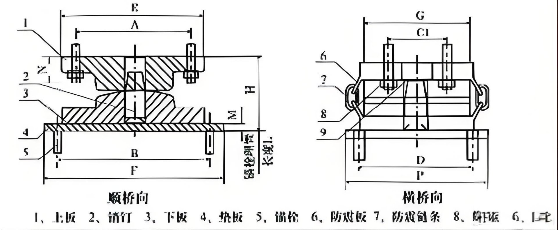
4. Basin type rubber bearings


We are just starting to distinguish between fixed supports and movable supports here~


Basin type rubber bearings have the characteristics of large horizontal displacement, flexible rotation, light weight, compact structure, simple construction, low building height, easy processing and manufacturing, saving steel, and reducing costs. They are ideal bearings suitable for use in large collapse bridges.


Pot type rubber bearings include two categories: fixed bearings and movable bearings. Active supports are divided into one-way active supports and two-way active supports. Generally speaking, fixed bearings are used for the fixed end of a bridge, while movable bearings are used for the movable end. For example, a simply supported beam bridge should have fixed supports at one end of each span and movable supports at the other end; A fixed support should be installed on one pier of each continuous beam bridge, and movable supports should be installed on the remaining piers and abutments. But if the bridge deck is wide and the distance between the two supports at the fixed end is large, and the expansion and contraction value in the transverse direction cannot be ignored, fixed supports cannot be used at the fixed end. Instead, one-way movable supports can be used, which can be rotated 90 degrees and placed under the beam. This can not only ensure the fixing effect in the longitudinal direction of the bridge, but also play a role in the transverse direction of the bridge. In addition, in order to reduce the stress on piers and abutments, for simply supported beam bridges, it is advisable to arrange fixed supports on piers and abutments with lower elevations; For continuous beam bridges, in order to disperse the longitudinal deformation of the entire beam at both ends of the beam, it is advisable to arrange fixed supports at the pivot points in the middle.


The bidirectional movable support can move in any direction within the horizontal plane. Therefore, this type of support should be selected for the movable piers and abutments of curved bridges. As for one-way movable supports, they can be used in straight bridges. However, it should be noted that it is only suitable to use it when there is only one support on the movable pier, or when the lateral temperature expansion between the supports is very small.

The activity pot type rubber support consists of an upper support plate, a polytetrafluoroethylene plate, a pressure bearing rubber block, a rubber sealing ring, a middle support plate, a steel clamping ring, a lower support plate, and upper and lower support connection plates. By combining the upper and middle support plates or using the upper and lower support connection plates, a fixed support can be formed.


5. Spherical steel support


a. Fixed support



A fixed support constrains both the XY and Z directions, while a spherical support has no displacement in the Z direction, so the upper structure cannot move in any of the XYZ directions. And the spherical skateboard inside can ensure that the structure has a certain degree of rotation.


b. Unidirectional movable support



A unidirectional movable support restricts sliding in one direction while allowing free sliding in the other direction. Looking at the picture, the support on the plan can move vertically and is constrained horizontally.


c. Bidirectional sliding support


There are no constraints in the XY direction, only constraints in the Z direction, and rotation is not constrained, which is equivalent to a vertical hinge support in structural mechanics.


The main structure of the support moves synchronously with the beam, and the stress position of the beam does not change with displacement, ensuring that no additional torque is generated during displacement of the beam; The support transmits force through the spherical surface, so the reaction force acting on the supporting pad concrete is relatively uniform; The rotational torque of the support is small, and the rotational performance of the support is consistent in all directions.



CONTACT US

+86 15116183980

+86 15116183980

lkvicky2003@gmail.com

+